小米全屋智能导游! ! !打造小米智能家居,这篇文章就足够了! ! !
预警:这篇文章会很长!!!但看这一篇绝对够你搭建小米的全屋智能家居了!!!
这篇文章的目标是:
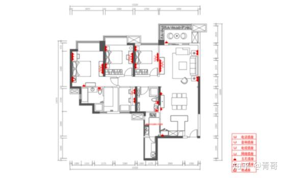
先来一个案例感受一下:

三室一厅全屋智能
本文会持续保持更新,各位可以先点赞,收藏,关注!再看,免得找不到了!!!
文章目录:
一,智能家居智能在哪里?
二,智能家居常用的使用场景有那些?
三,做智能家居的注意事项
四,具体场景和解决方案指南(内涵知识和闭坑注意事项)
全屋网络家居中枢(网关和通信协议知识)音箱选购智能安防智能照明智能窗帘影音系统传感系统厨卫清洁健康生活(各种家电设备的智能方案)
五,房间各区域实体案例拆解分析(含设备清单)

一,智能家居智能在哪里
智能家居是一个系统,一个生态。绝不是单个或者几个智能设备就叫智能家居。
生态系统是指:可以统一在一个平台上控制和设置所有的智能设备之间的联动。而不是下载一堆app,需要控制哪个打开哪个。
智能家居智能在哪里?
总之一句话就是:智能家居是理解你生活,听得懂你说话,看得懂你行为,融入你生活。

QA:
(1)智能家居未装修和已经装修都能做么?
都可以做!无线智能家居是不需要提前布线的,小米这种就属于无线智能家居。只不过新房未装修之前的注意事项和已经装修过的改造方式有些许差别。
下面第三部分会详细解释。
二,智能家居的常用使用场景有哪些?

三,做智能家居注意事项
1,预留网线
智能家居工作的基础就是网络,所以一个稳定高速的网络对智能家居的体验还是非常关键的。在做智能家居之前,如果没有装修,根据户型大小,做好提前规划:
未装修:
最好每个房间都预留网线接口,以备不时之需。户型比较大的大平层或别墅尤其如果。如果是别墅或者大平层想采用隐藏式ac+ap的网络方案,要提前预留网线和ap面板的洞口。
已装修过改造的
一个路由器不能网络覆盖的时候,可以采用无线mesh组网的方式进行网络搭建。
2,留好电路
留好电路分为:多预留插座位置和预留开关零线
(1)预留零线
这个在装修水电进场的时候,跟水电师傅说”我要所有开光留零线“。这个不需要自己操作,只要告诉师傅就行了。
因为一般家庭装修的时候,师傅默认都是给留单火线。所以现在市面上的智能开关分为单火版和零火版。单火开关不仅价格贵些,而且支持灯泡的功率和数量都有限制,甚至有些质量不好的灯会出现频闪现象。

看懵不要紧,记住跟电工说刘零线就行
(1)预留插座
智能家居中很多东西都是需要插座供电的,如果没有预留插座要么会导致用不了,要么就只能采用坚持供电的形式,后期会带来不必要的麻烦。即使装修设计的时候,也难免没有考虑全面。多预留一些,后面新增只能家居设备也不会没电可用。
比如需要预留的:
电动窗帘,只能摄像头,扫地机器人,只能马桶,空调,只能晾衣架,空气净化器,洗碗机,净水器等等。大部分都是一些厨房,客厅,阳台,卫生间的大家电设备。
记住一句话如果做智能家居:宁可多留,不可不留。把自己需求跟水电师傅说清楚。

记不住上面说的,就记住我下面这张图。保存备用!!

四,具体场景和解决方案指南(内涵知识和闭坑注意事项)
智能家居都需要哪些产品,或者说小米智能家居只要有哪些商品!主要分为:

1,全屋网络
上面说过,稳定的网络是智能家居的基础,不同的户型适合不同的网络方案。目前做全屋智能的网络方案有三种:

(1)单路由--两室一厅以下的房间
在客厅或房间中心放一个路由器就够了,整个房间的网络覆盖就够了。
推荐:小米路由器 ,和 ,小米路由器
(2)多路由mesh组网-三室一厅以上的大平层或别墅
mesh组网很简单,就是多台支持mesh组网的路由器放在房间的不同位置,来实现网络的全覆盖。小米路由器最多支持10台路由器连接。且mesh组网的方式是无缝衔接,你的手机或者只能设备移动到网络差的地方会自动切换到网络号的路由器上,你和设备都是无感的。
可以上面这两个设备组网,也可以是相同型号的设备组网。

正在装修的,建议预留网口。采用有线mesh组网的方式,不仅可以实现无缝漫游,而且连接更稳定。组网也很简单,子路由通过网线连接主路由器或者光猫。
如果没有预留网口:就采用有无线mesh组网。子路由通过无线连接智主路由,组成网络覆盖全屋。
(3)ac+ap组网---适合大平层,大别墅这类
ac+ap的方案适合比较大的空间,比如医院,学校,公司等等,当然别墅做智能家居也能用。它属于隐藏式的网络覆盖方案。通过每个房间预留网口,然后把ap面板接入网口,通过ap面板为这个房间提供无线信号,从而实现全屋的网络覆盖。可以根据房间数量,增加ap的个数就可以了。
我的建议是:如果不是特别特别大的空间,预留好网线,才有有线mesh组网的方式就够用了。

2,智能中枢--网关
什么是网关?
网关是智能家居的控制中枢,是协助智能设备连接网络的设备。所有的智能设备都是需要连接网络的,有的设备是支持WiFi直接联网,有的设备不支持WiFi直接联网,所以网关就起到了连接网络的作用。同时他也起到了从网络接收命令,传递给智能设备的作用。
这里的WiFi是一种通信协议:
通信协议是指设备之间沟通的语言,只有相同通信协议的设备才能进行相互沟通。目前主流的通信协议有三种:WiFi,蓝牙/蓝牙mesh,。
目前小米智能家居大部分智能设备都是采用的是WiFi 和 蓝牙通信协议。
所以在选购产品的时候,要先看清通信协议,然后再购买。

推荐的网关设备:
(1)单独的网关:小米多模网关
多模网关同时支持,蓝牙mesh通信协议,和通信协议。也就是说,偶尔买到了协议的设备也能工作。可选择的 设备更多。
(2)自带蓝牙mesh网关的小爱同学
绝大部分的小爱音箱都搭载蓝牙网关。做小米智能家居小爱同学是必不可少的设备。
3,音箱选购:
这篇文章主要介绍的是智能家居的方案,因为智能音箱又是另外一门很有学问的学科。所以,我不详细介绍。只说推荐的款,如果想深究,看上面哪个链接,绝对够用。
(1)能控制传统家电的小爱音箱-适合放客厅/主卧/书房
就是除了带蓝牙mesh网关之外,还带红外:红外是传统遥控器常用控制方式,所以带红外的智能音箱,买回去可以直接控制空调,电视这样非智能的设备。
前提是得是红外遥控器。
用手挡住遥控器,不能继续控制电视或空调设备的就是红外的。因为红外不能穿透。
【性价比最高的:小爱pro】
音质好,收音灵敏,带红外,带网关
【小爱paly,增强版】
带红外,带网关,音质和收音比上面的差点。
(2)小米小爱触屏音箱---适合放入门玄关
是小屏幕3.97寸的音箱:可以和智能门锁联动,开门问候,以及方便看时间
(3)redmi小爱触屏音箱---适合放客厅/餐厅/卧室
这款屏幕8寸1280p高清的,可以和猫眼/门锁/摄像头联动做安防查看使用。
,安防方案
(1)离家一键布防
当家里没有人的时候,启动一键布防功能。家里门窗有任何异动,房间有人闯入。直接给坏人警告并且给你发送报告信息。带猫眼的智能门锁,还有智能摄像机全天候布防。离家更安心。
所需设备:
这两款门锁都带猫眼和门铃

(2)有人来访,远程查看或者房间内查看
所需设备:带猫眼的智能门锁+带屏幕的小爱同学
如:小米智能门锁pro+redmi小爱智能音箱。
小爱同学智能音箱选购攻略 !
(3)全方位防灾
防火灾,水灾(厨房漏水),防天然气泄漏。烟雾报警器,水浸卫士,天然气卫士会全天监控家里的情况,一旦发现有安全隐患。在家的时候小爱会发出实时播报,不在家的时候,手机会收到警报信息。有效预防各种灾
所需设备:
蓝牙网关的小爱同学+烟感卫士+氺浸卫士+天然气卫士(天然气卫士需要预留插座供电)
QA:
(1)有没有可以放室外的摄像头?有没有能保护隐私的摄像头?
有的:
支持米家智能摄像头指南
5,智能照明
智能家居中科技感和氛围感的营造很大一部分都要通过灯光来实现。传统家居其实也是一样。所以,智能照明是肉眼感受最深的部分,也是智能家居非常重要的一个部分。
先说理论,然后再实践:
智能照明共有五种方案,其中有两种解决方案非常推推荐:
智能灯必须得搭配可以回弹的凌动开关,因为智能灯需要常供电,其他开关一旦手动关灯之后就断电掉线了,就不能语音控制和远程控制了。

智能照明实现的五种方案 (感兴趣可以看看)
实际操作方案
1,开门开灯,离家关灯
打开房门,房间内的灯光打开。离家上提门锁,放假内灯光自动关闭。
所需设备
小米智能门锁pro+智能开光+小米小爱触屏音箱
2,人来灯亮,人走灯灭
路过走廊的时候,或者晚上进入卫生间的时候。
所需设备
人体传感器+智能开关+带网关的小爱同学
3,关闭所有灯光/分房间控制灯光。
可以小爱同学语音控制,也可以智能无线开关控制。“小爱同学,关闭客厅灯,关闭主卧灯。”
所需设备:
无线开关/小爱同学+智能开关
4,调节灯光亮度,颜色,色温

上面是只调节开关,下面这种需要调节亮度,颜色,色温的方案,就需要凌动开关+智能灯了。可以用来营造各种氛围。浪漫的,科技感的。温馨的等等。

所需设备
小爱音箱+凌动开关+智能吸顶灯+筒射灯+彩光灯带+智能财管灯泡
调节色温亮度的是:
可以调节颜色的是:
yeelight是小米生态链公司,也是做智能灯领域特别牛的公司。
5,下床既亮灯
这个只需要一个小夜灯就可以了。自带人体感应和灯光的功能。可以直接实现。
晚上下床上厕所很方便,不刺眼。
QA
如何智能灯实现双控,注意些什么?
双控就是两个开关控制一个灯,比如卧室和客厅同时控制客厅灯。
解决方案:用两个智能开关,解决。
一个是智能墙壁开关连接灯线+一个随意贴智能开关想放哪里放哪里

6,智能窗帘
智能窗帘的实现是通过用窗帘电机实现的。可以语音控制,远程控制,智能联动。窗帘电机分为2种:
实现的功能也解决起来也很简单:
智能窗帘电机选购指南!!支持小爱同学语音控制的窗帘电机有哪些?
tip:
智能窗帘一般都是包安装,包轨道的,一定要看清楚是否包安装包轨道窗帘电机要预留插座,如果没有预留,要买带电池版的窗帘电机。

支持的轨道方式
7,智能影音系统
这个就是可以设置场景模式,比如说“小爱同学,我要看电影/电影模式”,然后窗帘缓缓关闭,电视/投影仪打开(幕布满满落下),灯光满满关闭/调暗,然后音箱打开。环绕的家庭影院,就完成了
所需设备
小爱同学+小米电视/小米投影仪2+智能灯/智能开关+小米电视音箱影院版
QA
智能观影必须是小米电视么?
不一定,用其他品牌的电视也可以。如果是红外遥控的电视,直接用小爱智能音箱pro就能控制。如果是射频的电视,就再买一个欧瑞博智能射频遥控器就行。
8,厨卫清洁
(1)一句话,调好浴室温度,进去都是暖暖的。“小爱同学,我要洗澡”
解决方案:小爱同学+智能浴霸pro
(2)一句话升降晾衣架,洗好衣服晾衣架自动降下来。
解决方案:小爱同学+aqara智能晾衣架+米家互联网洗烘一体机1S 10kg


9,各种传感器
传感器的目的就是用来判断当前情况是否符合某种情况的。
这个前面讲到的时候多多少少都有讲过

什么是传感器!!小米智能家居传感器详解
10,健康生活(各种家电设备智能方案)
这部分和会用到很多上面的传感器
(1)语音控制空调开关
解决方案:小爱音箱+小米空调伴侣 或 小米智能空调
(2)温度过高或者过低,自动打开空调
解决方案:温湿度传感器+小米空调伴侣2 或 小米智能空调
(3)回家就打开空调
解决方案:小米智能门锁pro+小米空调伴侣2 或 小米智能空调
(4)开窗自动关空调
解决方案:门窗传感器+小米空调伴侣2 或 小米智能空调。
(5)智能空气加湿,空气净化,除甲醛
解决方案:
QA:
(1)一定要小米的空调才行么?
不是的,传统家里的空调也行,用小米空调伴侣2链接空调。就可以实现听过语音和其他职能方式控制了。空调伴侣支持229种空调品牌。所以一般都能用。
(2)空气净化器如何选购
一般买大不买小,毕竟放客厅清洁全屋的时候多。空气质量关系到健康
(3)如何选购加湿器
一般选择性价比高的,这个东西就这一个加湿功能,能加湿就行。

实体案例解析和设备清单改天写,今天太晚了。
感兴趣可以先收藏起来免得后面找不到了。
























